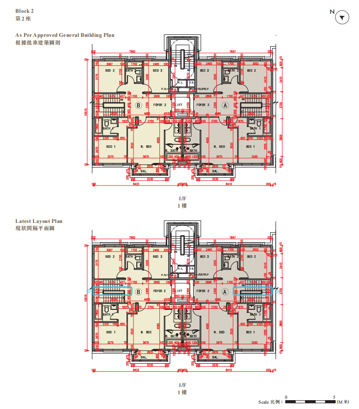
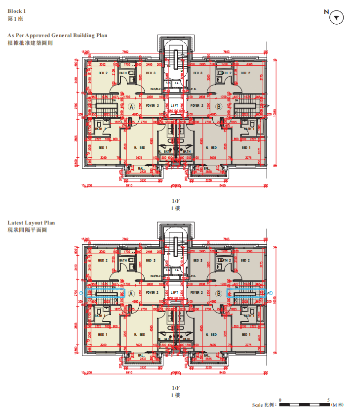
樓層平面

可視化展示樓棟佈局與景觀分層,輔助選房決策

樓棟佈局公示

獨棟別墅區(A1-A28 棟)

呈「環形佈局」,每棟均臨海或臨山,無樓距遮擋,戶戶享獨立景觀視野

大平層區(B1 棟)

僅 3 層,每層 4 戶,1 層為入戶大堂 + 會所入口,2-3 層為大平層單位,層高 3.8 米,所有單位客廳直對赤柱灣海景

景觀分層標註

臨海別墅(A1-A15 棟)

直面南中國海,露台/泳池可直觀赤柱碼頭、蒲台島雙重景觀

臨山別墅(A16-A28 棟)

背靠赤柱山原生綠地,私家花園與山林相融,兼具私密與自然

大平層單位

2 層單位享側海景 + 山景,3 層單位享 270° 環幕海景,無任何建築遮擋

空間說明

樓棟信息:共 40 戶(28 套獨棟別墅 + 12 套海景大平層),低密度墅區,樓棟高度≤3 層,容積率僅 0.3

戶型分佈:獨棟海景墅(5800-8200呎)、頂層海景大平層(3200-4500呎)

景觀標註:270° 南中國海海景 + 赤柱山原生山景,無遮擋視野覆蓋整片赤柱灣,戶均享超 1000 呎私家花園